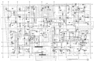
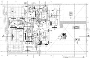
When the owner of the Maya Building in downtown Missoula decided to expand their usable space by adding a 4th story to the existing structure, they called on JM Engineering to devise a new mechanical and plumbing system for the building.
The project presented a unique challenge due to the fact that there is very limited space inside the wooden ceiling joists of the original building to house all duct work for both the new and existing areas.

“When the owner of the Maya Building in downtown Missoula decided to expand their usable space by adding a 4th story to the existing structure, they called on JM Engineering to devise a new mechanical and plumbing system for the building.
”
The magnitude of the job becomes apparent when you compare the intricacy of the floor plans to the deceivingly simple elevation drawings shown here.



Axiom Engineering Group
Axiom Engineering Group
Published


